Logo Vilo Bach
Logo Vilo Bach
  • Présentation
  • Expériences
  • Publications
  • #News
  • Contact
Réhabilitation des halles industrielles – Pallice Palace / La Rochelle, France 2025
Réhabilitation du 132 Avenue du Président Wilson / 132 Avenue du President Wilson, Saint-Denis 2024
Réhabilitation d’un bâtiment de bureaux – Rue des Pâtures / Paris, France 2024
Réhabilitation thermique et réaménagement des espaces verts de 36 logements en site occupé / Satory. Versailles 2023
Réhabilitation d’un bâtiment de bureaux – Rue Tolbiac / Rue Tolbiac, Paris, France 2023
Tolbiac
Réhabilation d’un bâtiment de bureaux – Boulevard Pereire / Paris, France 2023
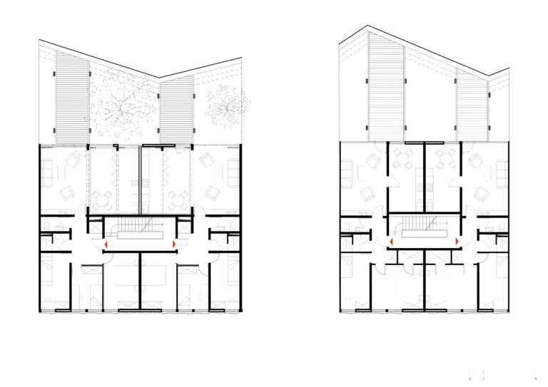
48 logements neufs à Lorient / Lorient 2023
Construction de 102 logements dans l’ancienne Caserne Fesch / caserne Fesch, Satory. Versailles 2023
Protection du portique de la Cathédrale de Leon / Leon, Espagne 2022
Commissariat central de Paris / Paris, France 2022
Nouveau commissariat Paris 3ème
Nouveau commissariat Paris 3ème
Centre archéologique Lancia / Leon, Espagne 2021
Réhabilitation immeuble de bureaux – avenue Hoche / PARIS - 8ème arrondissement 2021
Les Volumes résiduels centraux de La Défense / La Défense 2020
Ecole de design industriel et textile / CHIASSO 2020
Centre d’interprétation de l’architecture Romane / Treviana, La Rioja, Espagne 2018
Centre d'interpretation de l'architecture Romane
Centre d'interpretation de l'architecture Romane
Pôle d’échange multimodal / Quimper, France 2018
Quimper
Quimper
Quimper
Quimper
Quimper
Réhabilitation du Palacio de Cortiguera / Santander, Espagne 2018
Réhabilitation du Palacio de Cortiguera
Réhabilitation du Palacio de Cortiguera
Réhabilitation du Palacio de Cortiguera
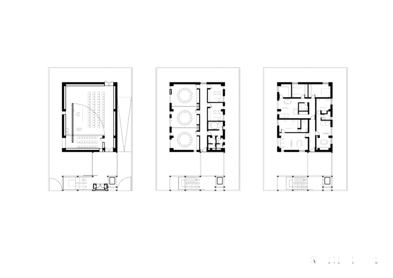
Conservatoire Professionnel de Musique / Leon, Espagne 2017
Conservatoire professionnel de musique
Conservatoire professionnel de musique
Conservatoire professionnel de musique
Conservatoire professionnel de musique
Institut Méditerranéen de la ville et des territoires / Marseille 2017
Institut méditerranéen de la ville et des territoires Marseille
Institut méditerranéen de la ville et des territoires Marseille
Institut méditerranéen de la ville et des territoires Marseille
Institut méditerranéen de la ville et des territoires Marseille
Institut méditerranéen de la ville et des territoires Marseille
Campus régional d’apprentissage / Nice, France 2017
Campus Regional d'apprentissage collaboration
Campus Regional d'apprentissage collaboration
Campus Regional d'apprentissage collaboration
Campus Regional d'apprentissage collaboration
Campus Regional d'apprentissage collaboration
Bâtiment de bureaux. Aubervilliers / Porte d'Aubervilliers, Paris, France 2017
Bâtiment de bureaux Aubervilliers
Bâtiment de bureaux Aubervilliers
Bâtiment de bureaux Aubervilliers
Bâtiment de bureaux Aubervilliers
Bâtiment de bureaux Aubervilliers
Réaménagement hôtel 3* Aéroport Lyon-Saint Exupéry / Lyon, France 2016
Hotel dans l'aéroport de Lyon Saint Exupéry
Hotel dans l'aéroport de Lyon Saint Exupéry
Hotel dans l'aéroport de Lyon Saint Exupéry
Ministère des affaires étrangères / Quai d'Orsay, Paris, France 2016
Réaménagement du ministère des affaires étrangères
Réaménagement du ministère des affaires étrangères
Réaménagement du ministère des affaires étrangères
Réaménagement du ministère des affaires étrangères
Réaménagement du ministère des affaires étrangères
Réaménagement du ministère des affaires étrangères
Réhabilitation de l’anneau extérieur du bâtiment des Galeries Lafayette / Annecy 2016
RÉHABILITATION DE L’ANNEAU EXTÉRIEUR DU BÂTIMENT DES GALERIES LAFAYETTE / ANNECY
RÉHABILITATION DE L’ANNEAU EXTÉRIEUR DU BÂTIMENT DES GALERIES LAFAYETTE / ANNECY
RÉHABILITATION DE L’ANNEAU EXTÉRIEUR DU BÂTIMENT DES GALERIES LAFAYETTE / ANNECY
RÉHABILITATION DE L’ANNEAU EXTÉRIEUR DU BÂTIMENT DES GALERIES LAFAYETTE / ANNECY
RÉHABILITATION DE L’ANNEAU EXTÉRIEUR DU BÂTIMENT DES GALERIES LAFAYETTE / ANNECY
RÉHABILITATION DE L’ANNEAU EXTÉRIEUR DU BÂTIMENT DES GALERIES LAFAYETTE / ANNECY
Étude de faisabilité pour deux hôtels de 3 et 4 étoiles / Tremblay-en-France 2016
ÉTUDE DE FAISABILITÉ POUR DEUX HÔTELS DE 3 ET 4 ÉTOILES / TREMBLAY EN FRANCE
ÉTUDE DE FAISABILITÉ POUR DEUX HÔTELS DE 3 ET 4 ÉTOILES / TREMBLAY EN FRANCE
ÉTUDE DE FAISABILITÉ POUR DEUX HÔTELS DE 3 ET 4 ÉTOILES / TREMBLAY EN FRANCE
Surélévation d’une maison / Montreuil, France 2015
Centre culturel de Bamiyan / Bamiyan, Afghanistan 2015
Résidence d’étudiants à Saclay. JD-01 / Gif-sur-Yvette, France 2015
Réhabilitation de logements sociaux / Denmark 2013
Réaménagement du séminaire en hôtel / Leon, Espagne 2012
Hôtel de luxe / Leon, Espagne 2011
Réaménagement du secteur urbain NC-32 / Ponferrada, Espagne 2011
Musée de Néanderthal / Pilona, Espagne 2010
Centre universitaire polyvalent / Leon, Espagne 2010
Maison de retraite / Santpedor, Espagne 2010
  • Mentions Légales
  • Contact